MODEL HOUSE販売用モデルハウス・展示場
福島市 大森3号棟【4/4OPEN】NEW
- エリア:福島県県南
- プラン:ベーシック
- Z空調
- 販売価格
- 3890万円(税込)
- 学校区
-
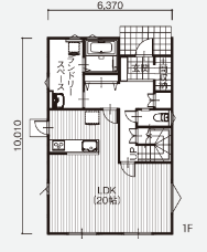
福島市 大森3号棟 4月4日オープン予定♪(先行内覧可能です。) ☆バルコニーレスタイプ☆ 20帖のLDKと2階洋室10帖でゆったり広々な間取りが特徴的!! 詳細についてはお気軽にお尋ねください♪ 福島支店:050-1798-8005
PICKUP見どころピックアップ
- 所在地
- 福島県福島市大森字舘ノ内50番2
- プラン
- ベーシック
- 土地面積
- 151.28㎡ (45.76坪)
- 建築面積
- 63.76㎡ (19.29坪)
- 延べ床面積
- 119.23㎡ (36.06坪)
- 1F床面積
- 61.27㎡ (18.53坪)
- 2F床面積
- 57.96㎡ (17.53坪)
- 販売価格
- 3890万円(税込)
- 間取り
- 3LDK
- 建物構造
- 木造在来工法2階建
- 前面道路
- 5.05m アスファルト舗装
- 総区画数
- 2区画
- 建ぺい率・容積率
- 60%・200%
- 用途地域
- 第1種住居地域
- 地目
- 宅地
- 駐車場
- 2台可
- 売主
- 株式会社ヒノキヤグループ
- 設備
- 東北電力、本下水、公営水道
お問い合わせ先
- 事業所
- 福島支店
- 担当
- 矢木
- 連絡先
- TEL: 050-1798-8005









