MODEL HOUSE販売用モデルハウス・展示場
敦賀市 呉竹町1号棟【2026年春OPEN】
代理店
- エリア:嶺南
- プラン:パパまる
- Z空調
- 販売価格
- 3210万円(税込)
- 交通
- JR敦賀駅より徒歩27分
- 学校区
-
敦賀西小学校(1200m)
松陵中学校(1100m)
9月末から人気の呉竹町でZ空調搭載MHが着工致しました! 年中 玄関からリビング、洗面、WICまで家中快適 全館空調Z空調を搭載しています! 立地も人気の呉竹です 大型WICなど、機能的に収納スペースが配置された27坪3LDKプランです 隣地の土地も販売中ですので 土地、資金計画、プラン作成などお気軽にご連絡ください ※完成前ですのでイメージしやすい様に 同形状・同仕様のお写真をご用意しました 実際には色が異なる部分がありますのでご注意ください 詳しくは営業までお気軽にご相談ください
PICKUP見どころピックアップ
- 所在地
- 〒914-0802 福井県敦賀市呉竹町2丁目7−15
- プラン
- パパまる
- 土地面積
- 122.76㎡ (37.13坪)
- 建築面積
- 47.20㎡ (14.28坪)
- 延べ床面積
- 89.42㎡ (27.04坪)
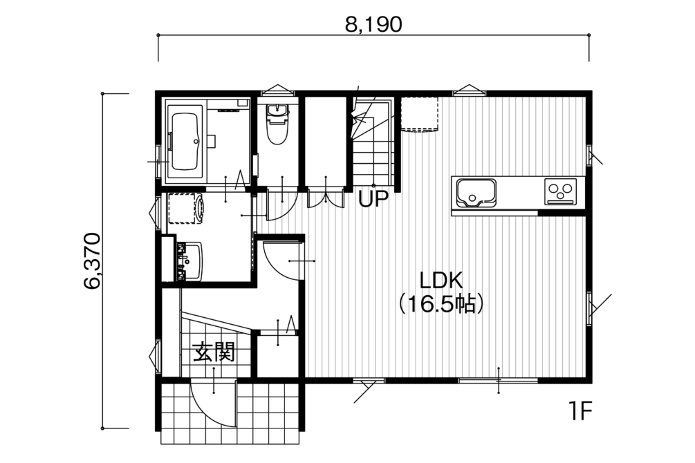
- 1F床面積
- 44.71㎡ (13.52坪)
- 2F床面積
- 44.71㎡ (13.52坪)
- 販売価格
- 3210万円(税込)
- 返済例
-
モデルハウス購入の場合の返済例
借入3210万円の場合
月々返済86,195円|頭金・ボーナス払い0円
- 間取り
- 3LDK
- 建物構造
- 木造在来工法2階建
- 前面道路
- 6m アスファルト舗装
- 総区画数
- 1区画
- 完成時期
- 2026年2月17日
- 建ぺい率・容積率
- 60%・200%
- 用途地域
- 第一種中高層住居専用地域
- 地目
- 宅地
- 駐車場
- 3台可
- 売主
- 株式会社ヒノキヤグループ
- 設備
- 公営水道 公共下水
お問い合わせ先
- 事業所
- 滋賀支店
- 連絡先
- TEL: 09072130346












