MODEL HOUSE販売用モデルハウス・展示場
小山市 西黒田1号棟NEW即入居可
- エリア:栃木県南部
- プラン:平屋
- Z空調
- 販売価格
- 3150万円(税込)
- 交通
- 美しが丘1丁目バス停より徒歩2分
- 学校区
-
間々田東小学校(1440m)
間々田中学校(1920m)
小山市に21坪の平屋モデルハウスが完成です。 Z空調+太陽光☀4.92kW+新発売のMAXairを搭載!! 家中が空気清浄機でクリーンな空気を提供致します。 ]花粉・ハウスダストは勿論の事、ペットの匂いにも効果があります(*´▽`*) 2027年4月から家庭用エアコンの省エネ基準が大幅に厳格化され、基準未達の機種は製造・販売できなくなり、特に低価格帯モデルの減少や価格上昇が懸念されている状況です。 それならば全館空調(Z空調)がお勧めです (^-^) 建物の販売は勿論の事、建替え希望、土地探しからも無料で情報提供させて頂きます。 お問い合わせはお気軽に担当の「野田」までご連絡を下さいませ (^^♪
PICKUP見どころピックアップ
- 所在地
- 栃木県小山市大字西黒田字九八幡296番70
- プラン
- 平屋
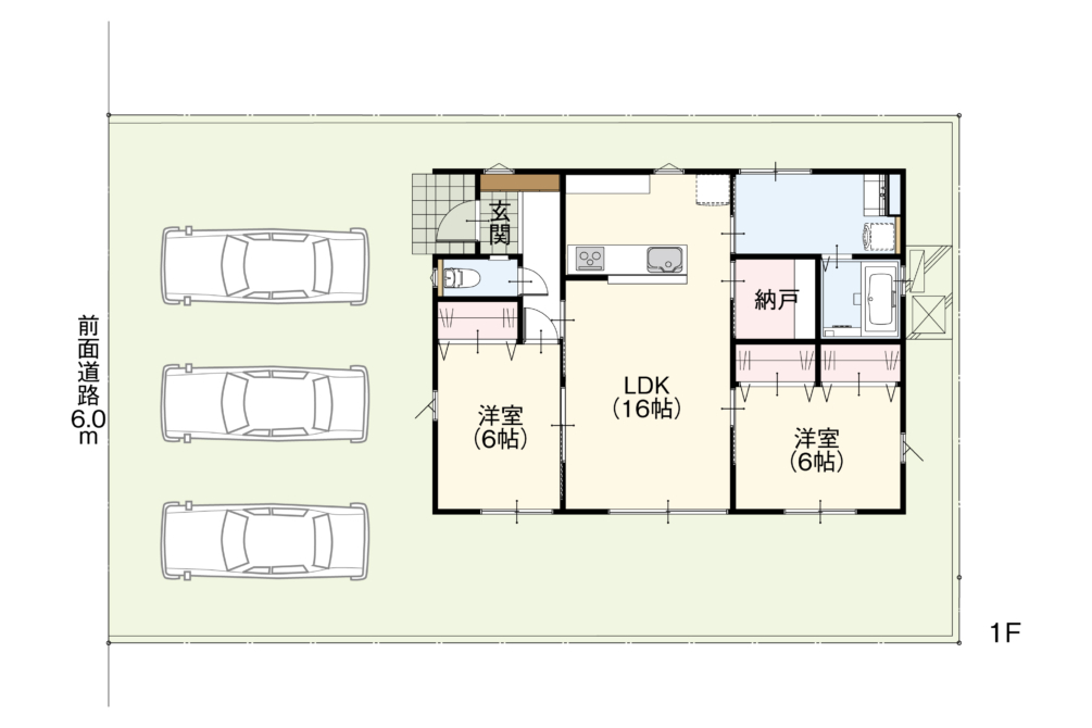
- 土地面積
- 205.47㎡ (62.15坪)
- 建築面積
- 72.87㎡ (22.04坪)
- 延べ床面積
- 71.21㎡ (21.54坪)
- 1F床面積
- 71.21㎡ (21.54坪)
- 販売価格
- 3150万円(税込)
- 間取り
- 2LDK
- 建物構造
- 木造在来工法1階建
- 前面道路
- 6m アスファルト舗装
- 総区画数
- 1区画
- 建ぺい率・容積率
- 60%・200%
- 用途地域
- 無指定地域
- 地目
- 宅地
- 駐車場
- 2台可
- 売主
- 株式会社ヒノキヤグループ
- 設備
- 東京電量、公営水道、公共下水
お問い合わせ先
- 事業所
- 小山支店
- 担当
- 野田(ノダ)
- 連絡先
- TEL: 080-7112-2868












