MODEL HOUSE販売用モデルハウス・展示場
上田 上塩尻1号棟【11/8OPEN】NEW即入居可
- エリア:長野県東信
- プラン:パパまる
- 販売価格
- 2360万円(税込)
- 交通
- しなの鉄道【上田駅】より徒歩61分
- 学校区
-
塩尻小学校(640m)
第二中学校(4240m)
上田市上塩尻にモデルハウスがオープンいたします。 平屋20坪ではありますが国道18号線に出やすく静かな場所です。 平屋プランに珍しい屋根裏収納付きで、新しいカップボード(リアリゼ搭載)制震ダンパー搭載で耐震対策もしております。 是非、ご見学ください!
PICKUP見どころピックアップ
- 所在地
- 長野県上田市上塩尻字越川276番1
- プラン
- パパまる
- 土地面積
- 244.62㎡ (73.99坪)
- 建築面積
- 63.76㎡ (19.29坪)
- 延べ床面積
- 62.10㎡ (18.79坪)
- 1F床面積
- 62.10㎡ (18.79坪)
- 販売価格
- 2360万円(税込)
- 返済例
-
モデルハウス購入の場合の返済例
借入2360万円の場合
月々返済66619円|頭金・ボーナス払い0円
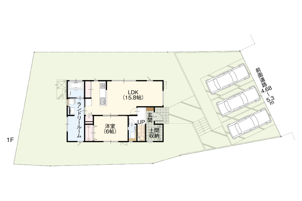
- 間取り
- 1LDK
- 前面道路
- 4.50m アスファルト舗装
- 総区画数
- 1区画
- 完成時期
- 2025年11月8日
- 建ぺい率・容積率
- 60%・200%
- 用途地域
- 指定なし
- 地目
- 宅地
- 駐車場
- 2台可
- 売主
- パパマルハウスカンパニー
- 設備
- 中部電力、公共下水、公営水道
お問い合わせ先
- 事業所
- 上田支店
- 担当
- 横山 雄貴
- 連絡先
- TEL: 080-7112-2911












